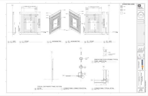
Korte Construction approached Michael Baker International to provide a design solution that would change the client provided design from a two story building to a single story building. The goal of this change was to eliminate the construction costs of providing an elevator and stairs, create additional usable square footage for the client, and play to their strengths with pre-cast concrete panel construction.
When our project won the bid there was a very simple and powerful reason. My re-design went beyond just the building but also addressed the site. In collaboration with the civil engineers, I sought to understand the site restraints and design the floor plan with those restraints in mind. After learning as much as I could, I found a very clever way of cutting out a huge length of 24′ wide high strength paving and made sure it would meet all of the requirements by reviewing it with the civil engineers. This move also eliminated a second guard gate, and reduced the amount of security fencing needed by a significant amount. All of these efficiencies and more were achieved simultaneously through the use of clever architectural planning.
Although not licensed at the time, I was the main force behind this project with oversight from licensed architects. I worked as part of a team of in-house engineers and external consultants to achieve the desired outcome. I At the beginning of the project, I reviewed the codes and client requirement documents in the request for proposals (RFP) and came up with the design that got approved by our client (Korte). The only modification by my Project Manager was to mirror the plan of the building prior to submission. After submission to Korte this design had to compete with the designs of at least 4 other contractors who had been shortlisted. When our proposal won the bid for work I continued to lead the design documentation and discipline coordination all the way through construction documentation and up to construction administration. I did not do as-built documentation for this project.

